新乡医学院三全学院拟对科研平台进行建设,欢迎具有项目建设能力和企业法人资格的商家参与议标。现将有关事项公告如下:
一、本次议标内容:平原校区科研平台建设
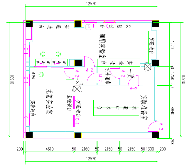
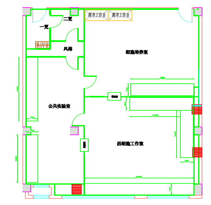
二、项目情况:实验室平台是我院教学科研的重要场所,是承担科研项目、培育科技创新成果、凝聚科技人才的主要阵地;是提升我院师生“双创”能力的关键之一。按照学院发展重点规划,拟建设达到省级生物工程技术研究中心标准的实验室平台,满足应用型研发需要。详细工程见附件清单(仅供参考)。
三、建设内容:实验台、基础装修、中央空调、电气工程、通风系统。本建设项目不分标段。校方不在组织集体现场勘查,如需勘查现场请联系科研部董老师。投标单位可结合学校设计要求和图纸,做出详细的、可行的实施方案。也可以进行整体设计,展示独到的专业性建设方案,在竞标会议上以PPT形式展示。
四、本次议标报名时间及要求:
即日起至2016年2月17日(下午16:00)前,无报名或上述时间外报名均不具备投标资格。
1.投标单位携带法人授权委托书、委托人及被委托人的身份证、企业营业执照、组织代码证、企业资质证书、投标保证金凭证类似业绩合同等原件进行现场报名。
2.需携带2个高校实验室平台建设的成功案例及成果展示,并提供相应的施工证明。
3.投标单位将以上文件进行复印加盖单位公章并装订成册交招投标与集中采购部留档备案;
地址:新乡医学院三全学院平原校区行政楼三楼招投标与集中采购部。
五、议标保证金:
1、投标单位在接到我方议标通知时,请交纳我方要求金额的议标保证金叁万元整参加开标会。
2、单位帐号如下:
单位名称:新乡医学院三全学院
汇款账号:4660 1010 0100 0142 90
开户行:兴业银行股份有限公司新乡分行营业部
六、标书领取时间:待定
七、投标文件送达方式:
投标单位在接到议标时间通知后,按开标时间自行携带密封保存并加盖公章的投标文件至议标会议现场,迟到的投标文件将被拒绝。
八、议标时间:另行通知。
九、我方不负责投标人准备投标文件、投标样品和递交投标文件、投标样品所发生的任何费用。
十、本次议标报名咨询联系方式:刘老师0373-7375531。
附件下载:1、
实验建设附件清单(仅供参考).doc
3、
图示1.PNG
4、
图示2.PNG
5、
图示3.PNG
6、
完整图.PNG
招投标与集中采购部
1月22日




